Sale, Zagreb, Knežija, office
- €125,000
Overview
- 1
- 83
Description
Knežija, close to Savska Street and Zagrebačka Avenue
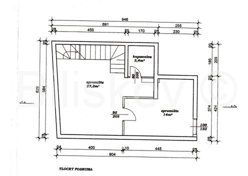
Two-storey street four-room office space with a total area of 83 m2 in the basement and ground floor of a building built in 2000. The building does not have an elevator. On the ground floor there are two rooms, the first of which has a large window along the road 4 m wide. The stairs lead to the basement, where there are two rooms, a kitchenette and a bathroom. The space is arranged and maintained. The height of the ceilings on the upper floor is 4 m, and on the lower 2.70 m. It is suitable for offices, shops, surgeries. The location is great because the space is located in a busy location, close to all important facilities, tram station and access expressway-Zagreb Avenue. Parking is free of charge.
EC: under construction
Orientation: East-West
Heating: central gas
Price: 125,000 €
Brokerage fee: 2% + VAT on the achieved purchase price
http://www.biliskov.com ID: 11865
Address
Open on Google Maps-
Address: 45.79226786 15.95559708
-
City: Zagreb
-
Zip/Postal Code: 10110
-
Country: Croatia
Details
Updated on July 25, 2022 at 2:33 pm-
Property ID ESJXYQ-T1341
-
Price €125,000
-
Property Size 83
-
Bathroom 1
-
Property Status For Sale
Mortgage Calculator
-
Down Payment
-
Loan Amount
-
Monthly Mortgage Payment
-
Property Tax
-
Home Insurance
-
PMI
-
Monthly HOA Fees
Schedule a Tour
Your information
Similar Listings
3 Bedroom House. Close to Agios Nikolaos Resort and Beaches – East Crete
35.1899597 25.7164166 Details- Arkadia



